top of page

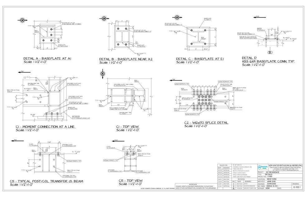
-TOWNHOUSE-

Client

Secret

Year

2020

Location

NY, USA

Share

  • Facebook
  • Twitter
  • LinkedIn
  • Instagram

Townhouse New York city.

Copyright © 2020 by Advanced Detailing & Modeling, Oceanside, NY. - All Rights Reserved

bottom of page